Looking for free printable contractor bid forms? You’ve come to the right place! Whether you’re a homeowner wanting to get quotes for a home improvement project or a contractor needing a template to submit bids, these forms are essential.
Contractor bid forms help streamline the bidding process, ensuring all necessary information is included. From project details to cost breakdowns, these forms help both parties stay organized and on the same page. And the best part? You can find them online for free!
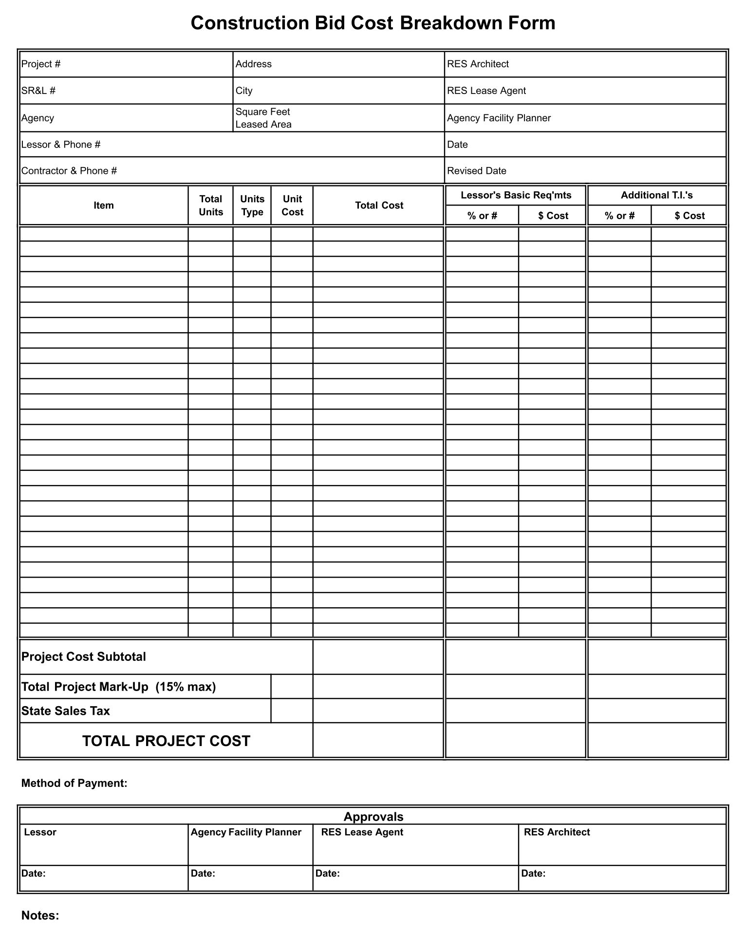
Free Printable Contractor Bid Forms
Free Printable Contractor Bid Forms
These free printable contractor bid forms come in various formats, such as PDF or Word documents, making it easy to customize them to suit your specific needs. Simply download, fill in the details, and you’re ready to submit your bid.
Having a standardized bid form not only saves time but also helps you present a professional image to potential clients. It shows that you are organized and detail-oriented, which can give you an edge over your competition. Plus, it helps avoid any misunderstandings down the line.
So, whether you’re a homeowner looking to compare quotes or a contractor looking to submit a bid, having a well-prepared contractor bid form is essential. Don’t waste time trying to create one from scratch – take advantage of these free printable forms available online!
Next time you have a home improvement project or need to submit a bid for a contracting job, make sure to use these free printable contractor bid forms to simplify the process and ensure everything is in order. Happy bidding!
Bid Proposal Templates 10 Free PDF Printables Printablee
Construction Bid Proposal Template Style 1 Use It And Win Your Bids
Construction Bid Project Form With Cost Breakdown Template Editable Downloadable Printable Small Business Fill In PDF black And White Etsy
31 Construction Proposal Template U0026 Construction Bid Forms
Free Construction Bid Templates Smartsheet





