Are you moving into a new home soon? The process of moving can be overwhelming, but having a checklist can make it much easier. It helps you stay organized and ensures you don’t forget anything important.
Creating a move-in checklist doesn’t have to be a daunting task, especially when you can get a free printable one online. With a printable checklist, you can easily tick off items as you go along, making the moving process smoother and less stressful.
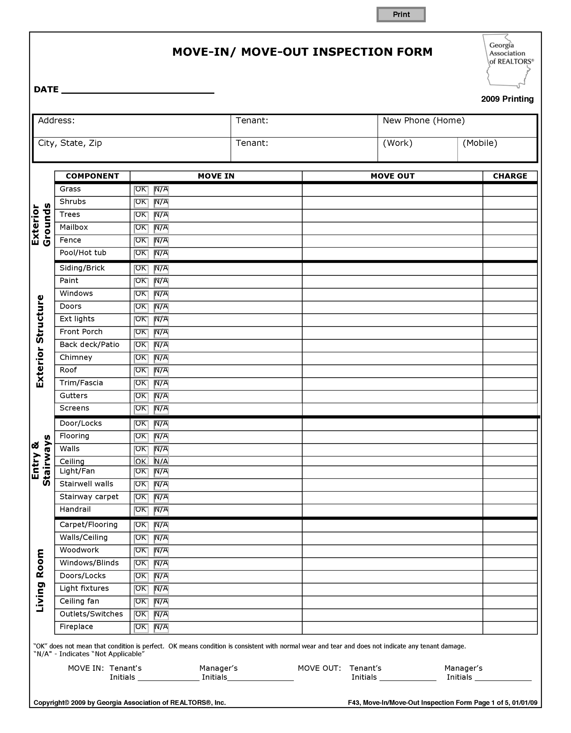
Free Printable Move-In Checklist
Free Printable Move-In Checklist
Having a move-in checklist can help you keep track of all the tasks you need to complete before, during, and after your move. From packing essentials to setting up utilities, a move-in checklist covers everything you need to do to make your move a success.
Printable move-in checklists often include categories such as packing, cleaning, utilities setup, change of address notifications, and more. You can customize the checklist to suit your specific needs and timeline, ensuring you don’t miss any crucial steps along the way.
By using a free printable move-in checklist, you can alleviate some of the stress that comes with moving. It allows you to see at a glance what needs to be done and helps you prioritize tasks effectively. With a checklist in hand, you can tackle your move with confidence and ease.
So, if you’re gearing up for a move, consider downloading a free printable move-in checklist to help you stay organized and on track. It’s a simple yet powerful tool that can make a world of difference in your moving experience. Happy moving!
Free Georgia Move in Move out Checklist PDF
41 Perfect Move In Out Checklists for Any Rental Inspection
Free Move In Move Out Checklist For Landlord U0026 Tenant PDF Word
Free Move in Move out Checklist Form PDF Word
Free Move In Move Out Checklist Form Tenant PDF Word EForms





